コマイ・ハウジング 前橋市 不動産情報【アパート・マンション・一戸建】

前橋市天川大島町  戸建 3LDK 10. 5万円

●管理費/月3000円
●敷金/
●礼金/
1ケ月
●駐車場/2台込

●保険/要

●取引/仲介

●手数料/1.1ヶ月
備考/1坪バス
 クリーニング料100,000円
デザイナーズ物件
温水洗浄便座、追焚機能

システムキッチン

BSエアコン
TVモニター付インターホン
前橋大島駅から車で5分
前橋駅から車で8分
 III
  別間取りあり(リッツヴィラ III)

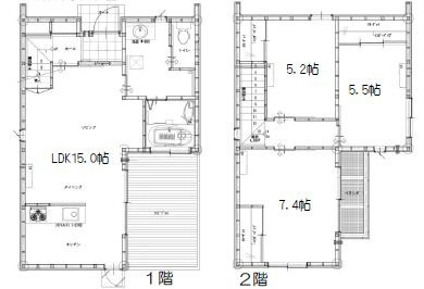
間取り
リッツヴィラ II

2
1

1
2
3
4 5 6
内覧写真はクリックで拡大します。

賃貸ナンバー 122-B
サンライフ リッツヴィラ II



>>賃貸物件リストヘ戻る  >>コマイ・ハウジングHOMEへ